Logo TROWISTA
Troisdorfer Wirtschaftsförderung

Kaiserstraße 1a
53840 Troisdorf

Telefon: +49 2241 89 602 0

info@trowista.de

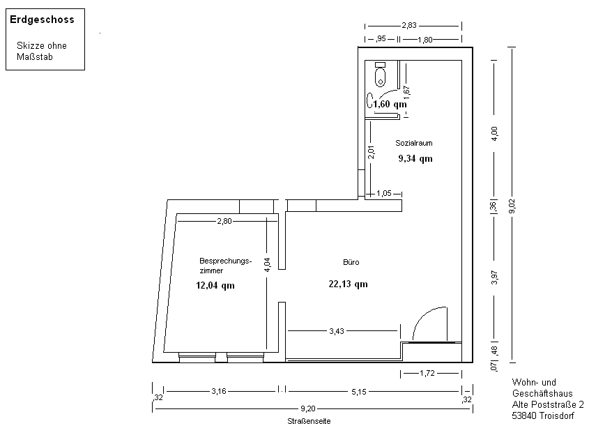
Ladenlokal in der Alten Poststraße 2, 45 m²

Ladenlokal Miete: mtl. 595,-- €

Ladenlokal Miete: mtl. 595,-- €
Heiz- und Mietnebenkosten: mtl. 195,-- €
Verkaufsraum: ca. 22 m2 , Nebenraum: ca.12 m2
Sozialraum mit Toilette: ca. 11 m2 Gesamtfläche: ca. 45 m2
Schaufensterfront 5,15 m

Verkaufsraum

Skizze

Nebenraum

Teeküche