Logo TROWISTA
Troisdorfer Wirtschaftsförderung

Kaiserstraße 1a
53840 Troisdorf

Telefon: +49 2241 89 602 0

info@trowista.de

Bürofläche Speestraße 24

6,45 €; 222 m² frei im 2.OG

Objektbeschreibung

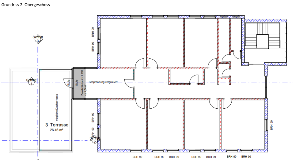
In einem Bürogebäude aus dem Jahr 1994, das 2014 durch einen Anbau erweitert wurde, steht im 2. Obergeschoss eine abgeschlossene Büroetage mit ca. 222,04 m² zur Verfügung. Die Fläche umfasst mehrere Büroräume, eine Teeküche, getrennte Sanitärbereiche sowie einen Serverraum. Die Büroräume sind mit Teppichboden, Arbeitsplatzleuchten und EDV-Verkabelung ausgestattet. Auf der Sonnenseite verfügen die Räume über elektrische Außenjalousien. Durch den Anbau ist zudem eine Dachterrasse entstanden.
Der Mietpreis beträgt 6,45 € pro m² zzgl. Nebenkosten und gesetzlicher Mehrwertsteuer. Stellplätze können teilweise zusätzlich angemietet werden.

Lage

Die Immobilie befindet sich im Gewerbegebiet „Speestraße/Josef-Kitz-Straße“ im östlichen Bereich von Troisdorf. Der Standort ist an das Troisdorfer Zentrum sowie an das regionale und überregionale Autobahnnetz angebunden.

Kontakt

pac24 GmbH
Frau Jasmina Belous
E-Mail: info@pac24.de
Tel: +49 228 62965862
Web: http://www.pac24.de

Exposé

Bilder

Grundriss

 

Kontaktieren Sie uns

Bitte geben Sie die Zeichen aus dem Bild ein.
Captcha
Erneuern